This well-maintained three-bedroom apartment of 92m2 is situated amidst the greenery of Amsterdam Zuidoost. With the Gaasperplas and Gaasperpark within walking distance, you can quickly immerse yourself in nature. This luxurious home features a balcony with awning, allowing you to enjoy the outdoors right from your balcony. With amenities such as schools, childcare, playgrounds, and limited traffic, this property is suitable for families with children and people who like to share.
LAYOUT:
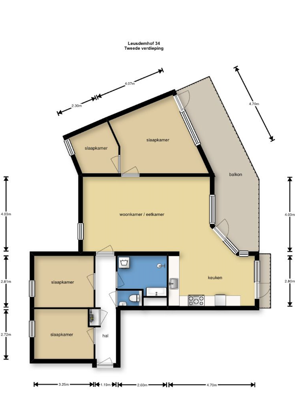
From the building’s hallway, you reach the second floor via the elevator. Upon entering, you find yourself in a hallway with access to various rooms including three bedrooms, the living room, a separate toilet and a bathroom with washer, dryer, mirror, and vanity. The living room adjoins a fully equipped open kitchen. Additionally, you have access to the balcony with awning from the kitchen.
SURROUNDINGS:
The building is located in the Nellestein neighborhood, surrounded by natural surroundings. Surrounded by the Gaasperplas and Gaasperpark, you reside on the edge of a beautiful natural area. Here, numerous recreational activities are available, such as walking, jogging, or simply relaxing at the sandy beach. Moreover, all necessary amenities such as shops, schools, childcare, a community center, and a health center are within easy reach. With limited traffic and many playgrounds, the neighborhood is very suitable for families with children and people who like to share.
You can easily park your car at the building’s parking garage. If you travel by public transport, it is within walking distance, allowing you to reach the center of Amsterdam in a short time.
FEATURES:
– Fully equipped open kitchen;
– Three bedrooms;
– Bathroom with washer + dryer + mirror and vanity;
– Furnished;
– Balcony with awning;
– Video phone;
– Parking space;
– Sharing allowed (max. 2 people);
– Pets allowed.
Rent: €2.200,- (excl. utilities, TV+internet)
Deposit: 2 months
Available: 10 July 2025


